CCAS工藝,即連續循環曝氣系統工藝(Continuous Cycle Aeration System),是一種連續進水式SBR曝氣系統。這種工藝是在SBR(Sequencing Batch Reactor,序批式處理法)的基礎上改進而成。1968年澳大利亞的新南威爾士大學與美國ABJ公司合作開發了“采用間歇反應器體系的連續進水,周期排水,延時曝氣好氧活性污泥工藝”。1986年美國國家環保局正式承認CCAS工藝屬于革新代用技術(I/A),成為目前比較先進的電腦控制的生物除磷、脫氮處理工藝。
CCAS工藝對污水預處理要求不高,只設間隙15mm的機械格柵和沉砂池。生物處理核心是CCAS反應池,除磷、脫氮、降解有機物及懸浮物等功能均在該池內完成,出水可達標排放。

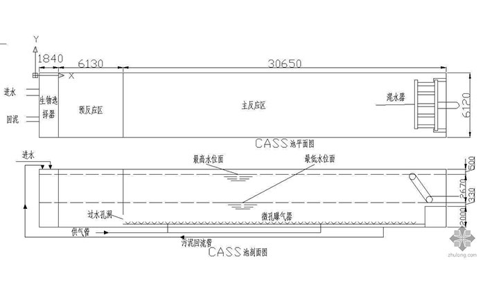
經預處理的污水連續不斷地進入反應池前部的預反應池,在該區內污水中的大部分可溶性BOD被活性污泥微生物吸附,并一起從主、預反應區隔墻下部的孔眼以低流速(0.03-0.05m/min)進入反應區。在主反應區內依照“曝氣(Aeration)、閑置(Idle)、沉淀(Settle)、排水(Decant)”程序周期運行,使污水在“好氧-缺氧”的反復中完成去碳、脫氮,和在“好氧-厭氧”的反復中完成除磷。各過程的歷時和相應設備的運行均按事先編制,并可調整的程序,由計算機集中自控。
獨特優勢
(1)曝氣時,污水和污泥處于完全理想混合狀態,保證了BOD、COD的去除率,去除率高達95%。
(2)“好氧-缺氧”及“好氧-厭氧”的反復運行模式強化了磷的吸收和硝化-反硝化作用,使氮、磷去除率達80%以上,保證了出水指標合格。
(3)沉淀時,整個CCAS反應池處于完全理想沉淀狀態,使出水懸浮物(SS)極低,低的SS值也保證了磷的去除效果。
適用范圍
CASS工藝可應用于大型、中型及小型污水處理工程,比SBR工藝適用范圍更廣泛;連續進水的設計和運行方式,一方面便于與前處理構筑物相匹配,另一方面控制系統比SBR工藝更簡單。
對大型污水處理廠而言,CASS反應池設計成多池模塊組合式,單池可獨立運行。當處理水量小于設計值時,可以在反應地的低水位運行或投入部分反應池運行等多種靈活操作方式;由于CASS系統的主要核心構筑物是CASS反應池,如果處理水量增加,超過設計水量不能滿足處理要求時,可同樣復制CASS反應池,因此CASS法污水處理廠的建設可隨企業的發展而發展,它的階段建造和擴建較傳統活性污泥法簡單得多。
工藝比較
與傳統活性污泥法相比
①建設費用低。省去了初次沉淀池、二次沉淀池及污泥回流設備,建設費用可節省20%—30%。工藝流程簡單,污水廠主要構筑物為集水池、沉砂池、CAS曝氣池、污泥池,布局緊湊,占地面積可減少35%。(以10萬噸的城市污水處理廠為例:傳統活性污泥法的總投資約1.5億,CASS法總投資約1.1億;傳統活性污泥法占地面積約為180畝,CASS法占地面積約120畝。)
、谶\行費用省。由于曝氣是周期性的,池內溶解氧的濃度也是變化的,沉淀階段和排水階段溶解氧降低,重新開始曝氣時,氧濃度梯度大,傳遞效率高,節能效果顯著,運行費用可節省10%—25%。
、塾袡C物去除率高,出水水質好,不僅能有效去除污水中有機碳源污染物,而且具有良好的脫氮除磷功能。(對城市污水,進水COD為400mg/L時,出水小于30mg/L以下。)
、芄芾砗唵,運行可靠,不易發生污泥膨脹,污水處理廠設備種類和數量較少,控制系統簡單,運行安全可靠。
、菸勰喈a量低,性質穩定,便于進一步處理與處置。
與間隙進水的SBR或CAST相比
、貱ASS反應池由預反應區和主反應區組成,預反應區控制在缺氧狀態,因此,提高了對難降解有機物的去除效果;
、贑ASS進水是連續的,因此進水管道上無電磁閥等控件元件,單個池子可獨立運行,而SBR或CAST進水過程是間歇的,應用中一般要2個或2個以上交替使用,增加了控制系統的復雜程度。
、跜ASS每個周期的排水量一般不超過池內總水量的1/3,而SBR則為1/2—3/4;CASS抗沖擊能力較好。④CASS比CAST系統簡單,但脫氮除磷效果不如后者。
工藝缺點
CASS工藝具有許多優點,然而任何一個工藝都不是十全十美的,CASS工藝也必然存在一些問題。CASS工藝為單一污泥懸浮生長系統,利用同一反應器中的混合微生物種群完成有機物氧化、硝化、反硝化和除磷。多種處理功能的相互影響在實際應用中限制了其處理效能,也給控制提出了非常嚴格的要求,工程中難以實現工藝的穩定、高效的運行?偨Y起來,CASS工藝主要存在以下幾個方面的問題。運行中存在問題:
(1)微生物種群之間的復雜關系有待研究
CASS系統的微生物種群結構與常規活性污泥法不同,菌群主要由硝化菌、反硝化菌、聚磷菌和異氧型好氧菌組成。目前對非穩態CASS系統中微生物種群之間的復雜的生存競爭和生態平衡關系尚不甚了解,CASS工藝理論只是從工藝過程進行一些分析探討,而理清微生物種群之間的關系對CASS工藝的優化運行是大有好處的,因此仍需加強對這方面的理論研究工作。
(2)生物脫氮效率難以提高
一方面硝化反應難以進行完全,硝化細菌是一種化能自養菌,有機物降解由異養細菌完成。當兩種細菌混合培養時,由于存在對底物和DO的競爭,硝化菌的生長將受到限制,難以成為優勢種群,硝化反應被抑制。此外,固定的曝氣時間也可能會使得硝化不徹底。另一方面就是反硝化反應不徹底。CASS工藝有約20%的硝態氮通過回流污泥進行反硝化,其余的硝態氮則通過同步硝化反硝化和沉淀、閑置期污泥的反硝化實現,其效果不理想也是眾所周知的。在沉淀、閑置期中,由于污泥與廢水不能良好的進行混合,廢水中部分硝態氮不能與反硝化細菌接觸,故不能被還原。此外,在這一時期,由于有機物己充分降解,反硝化所需的碳源不足,也限制了反硝化效率的進一步提高。這兩方面的原因使得CASS工藝脫氮效率難以提高。
(3)除磷效率難以提高
污泥在生物選擇器中的釋磷過程受到回流混合液中硝態氮濃度的影響比較大,在CASS工藝系統中難以繼續提高除磷效率。
(4)控制方式較為單一
目前在實際應用中的CASS工藝基本上都是以時序控制為主的,其缺點是顯而易見的,因為污水的水質不是一成不變的,因此采用固定不變的反應時間必然不是比較佳選擇。
中天恒遠污水處理設備聯系方式:
銷售熱線:010-8022-5898
手機號碼:186-1009-4262